Region Erding
Erding
4 °C
Überwiegend bewölkt
Wetter
search Suche
menu Menü
arrow_back zur Immobilien-Übersicht

KREIPL-IMMO- Moosburg/Isar- NB Doppelhaush.4 Zi.+ausgebauten Hobbyr.


Beschreibung


Neubau Doppelhaushälfte in Moosburg zum günstigen Preis natürlich schlüsselfertig. n schöner Wohnlage mit allen Vorteilen - Supermarkt – Arbeitsplätze – Wohnstraße.

Verkauft wird Haus 1,2, und 3, alle Grundrisspläne/Baubeschreibung in unserem ausführlichen Exposee. Bitte unverbindlich bei uns anfordern.
Wir bieten attraktive Neubau Doppelhaushälfte in Ziegel-Massivbauweise mit Garten. Auf Wunsch mit Carport, Ausstattungswünsche können jetzt noch gerne Berücksichtigt werden.

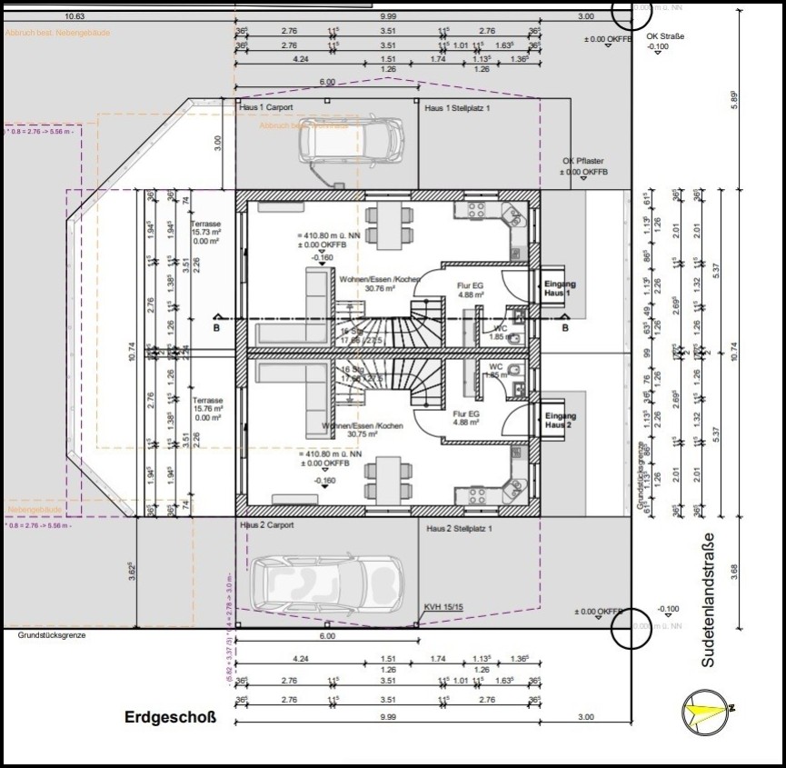
TOP: stattlich Doppelhaus Hausgröße – Länge ca. 9,99 m x ca. 5,37 m Breite. zum Preis mancher Eigentumswohnung in dieser Größe.
Das Bauzeitfenster beträgt ca. 8 Monate nach Baubeginn.

Das Haus 1 und 2 hat eine Wohnfläche von ca. 116 m², 4 Zimmer, 2 Bäder mit Garten und Süd - Terrasse sowie Wohnraumähnlichen Hobbyraum sowie 2 KFZ-Stellplätze.

Im gesamten Haus ist eine Fußbodenheizung, auch im Hobbyraum. Fenster mit Dreifachverglasung, Heizung mit Fernwärme.

Vorbereitete sind auch Lehrrohre für die Errichtung einer E-Ladestation, 2 Stellplätze siehe Planzeichnung sind im Preis enthalten. Sie haben die Auswahl.

Zur Info, damit man sich besser ein Bild machen kann, die neue Bebauung ist mit einer Höhe 9,19 Meter ungefähr so hoch wie der Altbestand.


Der Kaufpreis der Doppelhaushälfte Nr. 1 beträgt 675.000.-EUR VB
Der Kaufpreis der Doppelhaushälfte Nr. 1 beträgt 695.000.-EUR VB
Schlüsselfertig nach Baubeschreibung.

Für Beratungstermine oder mit einen ausführlichen Exposee stehen wir Ihnen sehr gerne zur Verfügung.

Eine kurze E-Mail an uns reicht bitte vergessen Sie nicht ihre Adresse anzugeben. Wir senden Ihnen sofort ein ausführliches Exposee zu.

Lage


Moosburg an der Isar liegt zwischen der Stadt Erding, Freising und Landshut. Der Flughafen München sowie die Stadt München sind gut zu Erreichen über die Autobahn A 92.

Kurze Wege zum Zentrum, eventuell Arbeitsplatz, Einkaufszentrum, Bahnhof, usw.


Ausstattung


KREIPL-IMMOBILIEN sucht laufend Miet- und Verkaufsobjekte in jeder Größe. Auch für vorgemerkte Kunden. Schnelle diskrete Bearbeitung u. GÜNSTIGE PREISE.

Wir bieten kompetente Beratung u.Verkauf, gepaart mit 37 - jähriger Erfahrung und kostengünstige Konditionen.

Bei Interesse schreiben Sie uns eine kurze E-Mail an Kreipl-Immobilien@t-online.de (w.Datenschutz) wir melden uns sofort bei Ihnen.


Details

ObjektNr.

A1021

Objektart.

Haus

Typ

Doppelhaushaelfte

Vermarktungsart

Kauf

Nutzungsart

Wohnen

Ort

85368 Moosburg

Kaufpreis

675.000,00 €

Provision

2,38 % inkl. MwSt. Käuferprov. vom Kaufpreis


Freiplatz

2 Stellplätze

Wohnfläche

116 m²

Grundstuecksfläche

147 m²

Zimmer

4

Unterkellert

Ja

Baujahr

2025

Parkettboden

Ja

Zentralheizung

Ja

Fussbodenheizung

Ja

Garage

Ja

Freistellplatz

Ja

KabelSatTV

Ja



Bilder


Anbieter




placeGoogle Maps öffnen

keyboard_arrow_up