Region Erding
Erding
4 °C
Überwiegend bewölkt
Wetter
search Suche
menu Menü
arrow_back zur Immobilien-Übersicht

KREIPL-IMMO- Erding-SELBSTBEZUG- 3 Zi.ETW- Balk.super Aussicht


Beschreibung


Erding schöne Lage, kurzer Weg zum S-Bahnhof Altenerding
Moderne Bezugsfreie 3 Zi. ETW. mit Westbalkon ca. 100 m² mit Lift u. ebenerdiger Zugang. ERBPACHTOBJEKT : Geringe Erbpacht ca. 31.- monatlich

TOP: 2020 renovierte sehr gepflegte Wohnung ohne Renovierungsrückstau
TOP: sehr viele Renovierungen/Erneuerungen am Haus
TOP: barrierefreier Zugang
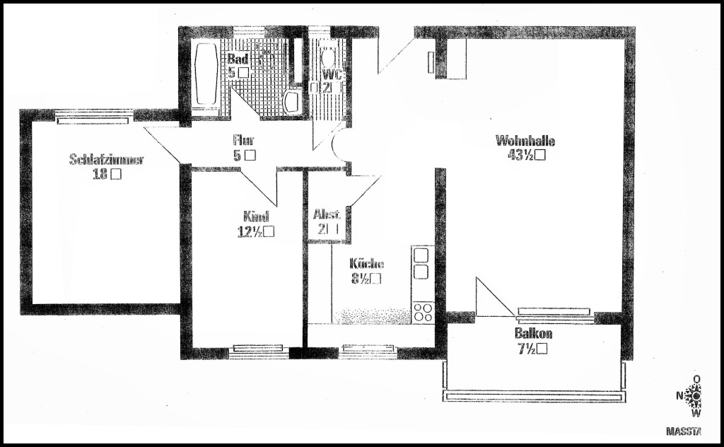
TOP: schöner Wohnungsschnitt
TOP: mit Balkon und Weitsicht
TOP: NEUES Badezimmer 2020/ Türen, 2023 alle Heizkörper wurden erneuert
TOP: großer Gemeinschaftsgarten mit Kinderspielplatz
TOP: bezugsfrei nach Absprache
TOP: mit Lift im Haus
TOP: Besucherparkplätze
TOP: TG Stellplatz zzgl. 19.000EUR
TOP: kurze Wege ins Zentrum oder zur S-Bahn S2 Altenerding

Der große Wohnbereich mit ist gut geschnitten und hat Zugang zu dem großen sonnigen Westbalkon mit Markise.

Modernes neu und geschmackvoll gestaltetes Badezimmer. Separates WC.

Durch das Treppenhaus gelangt man in den zur Wohnung gehörenden Keller. Im Keller befinden sich auch mehrere Fahrradkeller und ein Waschraum mit Münzwaschmaschinen/-Trockner.

In der Anlage stehen ein Gemeinschaftsgarten mit Spielplatz für die Bewohner des Hauses zur Verfügung.

TOP: Geringe Erbpacht – Laufzeit des Erbpachtvertrages bis Ende 2072 mit
Verlängerungsoption um weitere 40 Jahre bis zum Jahr 2112.

Energiepass Art/ Verbrauchsausweis / Energiebedarf 69,6kWh-(m²a) /
Energieeffizienzklasse B / Ausweis gültig bis 27.02.2028/ Baujahr Gebäude 1975 /Wesentliche Energieträger Fernwärme

Lage


Top Lage in Altenerding- S 2-Bahn, Busverbindungen, Supermärkte, kurzer Weg in das Erding Zentrum usw. In schöner gewachsener gepflegter Wohnlage mit großem Gemeinschaftsgarten.


Ausstattung


KREIPL-IMMOBILIEN sucht laufend Miet- Pacht und Verkaufsobjekte in jeder Größe. Auch für vorgemerkte Kunden. Schnelle diskrete Bearbeitung u. GÜNSTIGE PREISE.

Wir bieten kompetente Beratung u.Verkauf, gepaart mit 38 - jähriger Erfahrung und kostengünstige Konditionen.

Bei Interesse schreiben Sie uns eine kurze E-Mail an Kreipl-Immobilien@t-online.de (w.Datenschutz) wir melden uns sofort bei Ihnen.


Details

ObjektNr.

A1059

Objektart.

Wohnung

Vermarktungsart

Kauf

Nutzungsart

Wohnen

Ort

85435 Erding

Kaufpreis

349.000,00 €

Provision

2,38% Käuferprovision inkl. MwSt. vom VK



Wohnfläche

100 m²

Zimmer

3

Unterkellert

Ja

Baujahr

1975

Zentralheizung

Ja

Befeuerung Fern

Ja

Personenfahrstuhl

Ja

Tiefgarage

Ja

KabelSatTV

Ja

Wasch-/Trockenraum

Ja

Energiepass

Verbrauch

Energiepass Gültigkeit

27.02.2028

Energieverbrauchskennwert

69.6 kwh/(m2*a)

Energiepass Warmwasser

Ja



Bilder


Anbieter




placeGoogle Maps öffnen

keyboard_arrow_up